Products
HOME> Products
12kV RM6 SF6 Gas Insulated Switchgear
  • 12kV RM6 SF6 Gas Insulated Switchgear12kV RM6 SF6 Gas Insulated Switchgear
  • 12kV RM6 SF6 Gas Insulated Switchgear12kV RM6 SF6 Gas Insulated Switchgear
  • 12kV RM6 SF6 Gas Insulated Switchgear12kV RM6 SF6 Gas Insulated Switchgear

12kV RM6 SF6 Gas Insulated Switchgear

Cum annos experientiae in productione 12kV RM6 SF6 Gas Insulated Switchgear, Comewill amplis Voltages ac Medium Voltage Switchgear amplis supplere potest. Nulla SF6 insulationem et technologiam exstinguientem, electricitatis copiam continuam efficit, temporis intervallum extenuat, et apparatum a vitiis tuetur.

Upgrade distributionem medium-voltages cum 12kV RM6 SF6 Gas Insulated Switchgear facta in Sinis. Modulare consilium, operationem anteriorem, et omnia circum praesidia, configurare fractores ambitus, virgas onerare, ac machinis prorsus ut opus est fundare. Aedificata ad vetustatem, otium sustentationis et operationis eco-amicae, haec unitas modernis signis electricis occurrit dum spatium salvificum et periculum operationis minuit.

Environmental Conditions

illud simplex teneant-hic est quod arma nostra tractare possunt, nulla perplexa lingua:

Altitude: Max 2000 metra (qualibet altior, nos ledo).
Temperatura: Opera in -40℃ ad +40℃, et mediocris temp super 24 horas transire non possunt 35℃.
Umor: Dies-hodie mediocris sub 95%, menstrua mediocris sub 90% — unitates etiam in locis humidis sustinent.
Spatium instruitur: Vacare debet gravi concussione, jolts, incendiis periculorum, vel quidvis quod explodere posset.
Terrae motus resistentia: Movet motum usque ad 8-gradum, sub 0.4g parte humum quate et sursum deorsum agitabit sub 0.2g.

Si condiciones tuae situs has ultragrediuntur (sicut super altitudinis altitudinis, caloris/frigidi, vel extra periculum seismicum), contingunt modo cum Welcome (Wenzhou) Electric Co, Ltd. Designare possumus tweak vel hamo te usitatis calces maculae tuae aptat.

Product Features

Insulation Superior & Arc-Stingens
In SF6 gas inexplicabili innixi sumus et proprietatibus arc-sponsionis hic innixus, in angulis non incidendis. Haec in sinu electrica vitia custodit, ergo ratio virtutis tuae stabilis currit, nullae guttae inopinatae vel detrimentum capiunt.

Flexibile Design
Modularitas ius coquitur in hanc unitatem. Miscere et aequare potes partes: ambitus praevaricatores, virgas onerare, permutationes terrae - quodcumque opus est tuo consilio. Nos eam ad spectionem tuam sartorem dabimus, ut solutionem distributionis accipias quae postea exacte tu es, non una mensura totius capsulae.

Foedus, Space-Saving Build
Hoc 12kV RM6 SF6 Gas Insulated Switchgear ordinatur aptare strictis maculis. Nullae tabulae plenae, nullum spatium vastatum-perfectum pro sitis ubi locus suus circumscribitur. Aura est installatio, et maximizat singulae digiti tui setup, sive urbs est substatio sive armarium officinarum.

Securus operari & Maintain
Omnia in usu anteriori aedificata sunt-non opus est unitatem ad tweak occasus resilire. Tutius est pro tua biga et via commodius. Victus etiam spoliatus est: partes pauciores iactare cum tempore, minus temporis, et impensas temporis inferiores.

Eco-friendly Design
Curamus cum systematibus SF6 gas-clausis nihil effluat, et tota unitas aedificata REDIVIVUS vel responsabiliter disponitur. Omnia pixides environmental cohibet, ideo certos calces non modo questus es, apparatum facile in planeta es questus.

Omnia circum Praesidium
Haec unitas reditum tuum contra onera, circuitus breves obtinuit - quidquid malesuada euismod in illum iacit. Retinet systema tuum et omnia armamenta ad illud aduncum, nulla refert missionem. Potestas stabilis, periculum minimi, id est de quo actum est.

At Welcome (Wenzhou) Electric Co., Ltd, hae notae iustae puncta glandulae non sunt—in omni unitate quae navem RM6 aedificata sunt, sive mole pro magno consilio emis aut consuetudine adhibita pro arto loco egent.

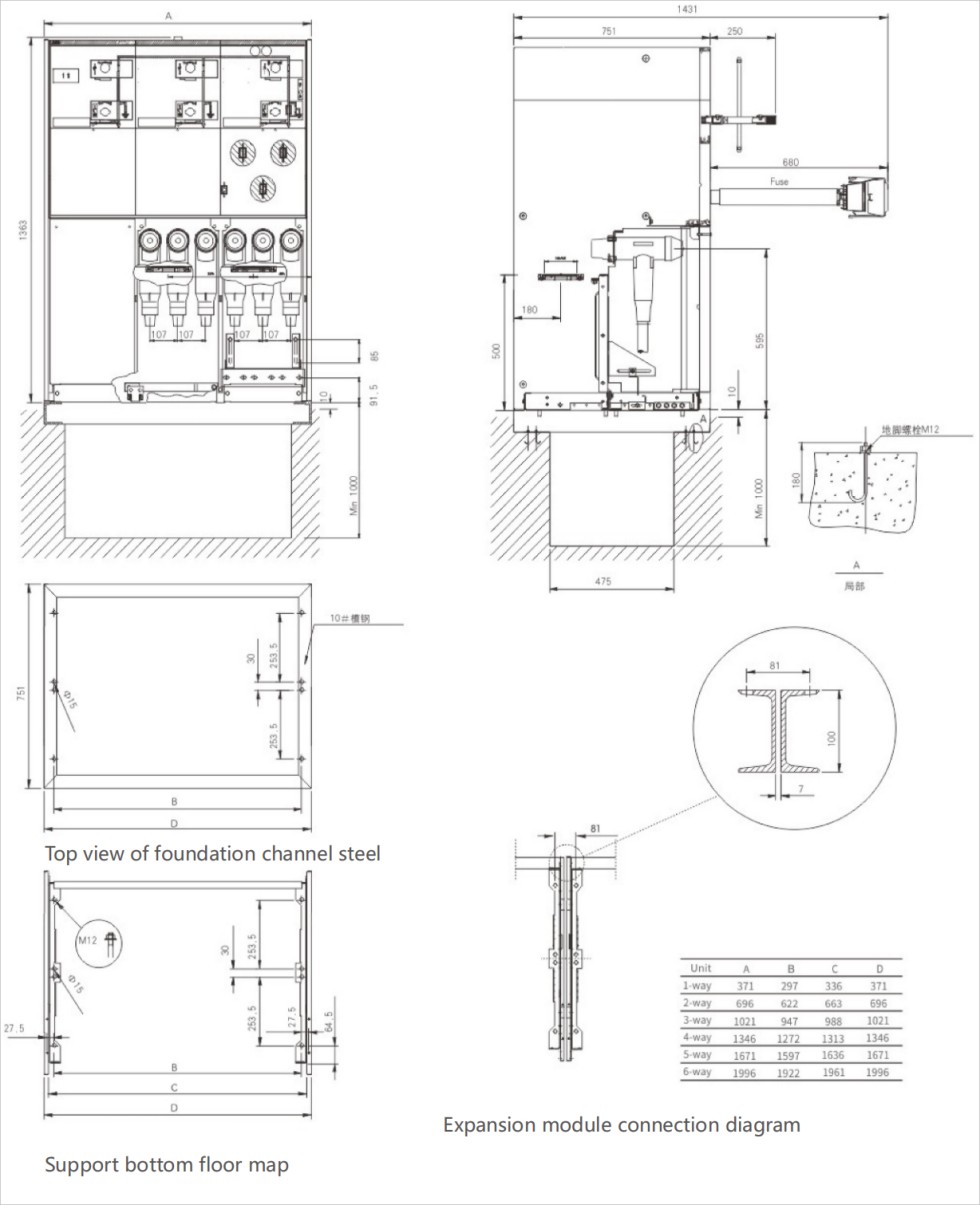
Technical Data

C modulus F modulus V modulus CB moduli

Onus switch Compositum electrica appliance vacuum switch Solitudo / grounding switch Dirige-aer ambitus ruptor Solitudo / grounding switch

Rated Voltage KV 12 12 12 12 12 12
Rated Frequency HZ 50 50 50 50 50 50
Virtus Frequency sustinere intentionem (phase/fractura) KV 42/48 42/48 42/48 42/48 42/48 42/48
Fulmen sustinere voltage KV 75/85 75/85 75/85 75/85 75/85 75/85
Ratum current A 630 nota 1 630
1250/630
facultatem fractionis






Rated clausa loop fractionis current A 630




Rated cable increpans confractus current A 10




Ratum ambitus brevis currentis claudendi (apicem) A 50 80



Rated apicem tolerabile current KA 50




Ratum breve tempus tolerabile current kA/3s 20




Ratum brevis circuitio praevaricationis current KA
31.5 20
25
Ratum translatio current A
1700



Utere maxime fuse de current A
125



resistentia loop -n ≤300 ≤600



Mechanica vita Tempora 5000 3000 5000 2000 5000 2000
Nota I: Pendet a current rating de fuse.

Pelagus circuitus tabulae




FAQ

Q1: Quae sunt praecipua beneficia RM6 super conventional aer-insulate switchgear? 

A: RM6 utitur SF6 insulatione et arcu gasi exstinguentis, eo magis compacto, tutiore, et sustentatione amicabili comparato cum unitatibus aereis insulatis ponderosis. 

Q2: Potestne RM6 adhiberi in dolor eget applicationes? 

A: Ita. Eius consilium modulari integrationem permittit cum digitalis mensuris, SCADA, ac remotis vigilantia rationum, idealis ad substationem intelligentium paroeciarum. 

Q3: Quaenam institutionem ambitibus aptae sunt? 

A: Indoor usus pro substationibus urbanis, plantis industrialibus, complexionibus commercialibus, vel quaevis applicationis mediae intentionis quaerunt pacta et certae distributionis calces.

Hot Tags: 12kV RM6 SF6 Gas Insulated Switchgear, Sina, Manufacturer, Supplier, Factory, Lupum, Lorem, in Stock, In Sinis, Low Price, Quality
Mitte Inquisitionem
Contactus info
Mitte inquisitionem de Comewill de switchgear, praevaricatores ambitus vacuos, commutator currentis. Mores adepto quotes, low prices or expert support from our China officinas manipulus.
X
Crusulis utimur ut meliorem experientiam pasco tibi praebeamus, situm negotiationis et personalize contentus analyse. Hoc situ utendo, ad nostrum crustulorum usum consentis. Privacy Policy
Reject Accipe