Products
HOME> Products
35kV Fixarum inclusus Orbis Switchgear pro Distributio
  • 35kV Fixarum inclusus Orbis Switchgear pro Distributio35kV Fixarum inclusus Orbis Switchgear pro Distributio

35kV Fixarum inclusus Orbis Switchgear pro Distributio

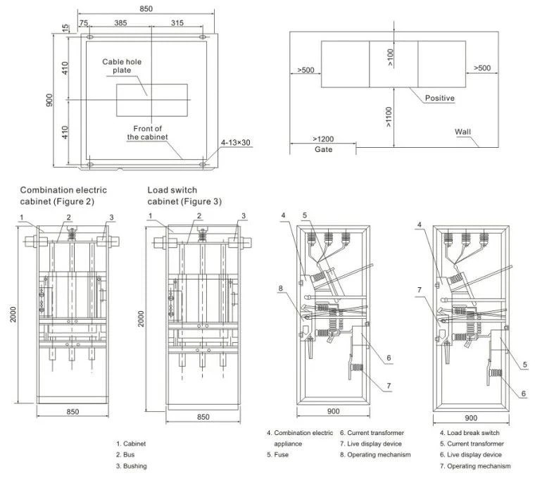
Comewill fabrica professionalis in Sinis est. Nostrum 35kV fixum anulum inclusum switchgear ad distributionem (infra postea ad "anulum principalem unitatis") pro potestate distributionis referendum est. Haec est summus volgatio switchgear specie destinata ad systemata distributionis potentiae, ad procurationem et electionem necessitates potestatis infrastructure inceptis apta, et optima electio est ad decisiones procurandas.

Ut nucleus armorum distributio retis imperium et tutelam, Comewill optimum 35kV fixum anulum inclusum switchgear pro distributione facta in Sinis potest stabiliter output certa potentia in variis missionibus applicationis, ut urbana potestas eget constructionis et renovationis incepta, industriae et fodiendi conatibus, alta aedificia et publicas facultates plene obviam core exigentiis emptorum ad apparatum faciendum.

Hoc fixum consilium anulus principalis unitas factus est malle productum pro moderno potentiae distributione systematis procurationis, offerens tibi vim gratuitam infrastructuram configurationis.

Technical Data

Vide numerum Item Unitas Data
1 Rated voltage kV 12 40.5
2 Rated frequency Hz 50/60
3 Ratum current A 630 630/1250
4 Rated potentia freguencywithstand voltage (1min) Augmenta et terrae kv 42 95
Solitudinem distantiarum 48 118
Rated fulgur implusewithstand voltage Augmenta et terrae 75 185
Solitudinem distantiarum 85 215
Potestas frequentiae intentioni resistere (Imperium et ambitum auxiliarium) 2
5 Rated breve tempus sustinere current KA 20/25 31.5
6 Rated apicem sustinere current KA 50/63 80
7 Duratio rated brevis-circuitus current s 4 4
8 Rated brevis-circuitu fractionis current KA 20/25 31.5
9 Rated brevis-circuitus faciens current KA 50/63 80
10 Arcing tempus s 1 1
11 Rated operating seriem
0-0.3s-CO-3min-CO
12 Insulating gas
SF6
13 Annua rate lacus % ≤ 0.01
14 Vexillum gradus ofprotection Signati Gas arca
IP67
Switchgear clausura IP4X
15 Rated incremento pressura MPa 0.03
Minimum eget gradu pressionem 0.01
16 Rated copia intentionum ambitus auxiliaris V DC 24, 48, 110, 220, AC220 .
17 Mechanica vita Circuitus ruptor Operatio 10000 11000
Solitudo switch 5000 3000
Earthing switch 5000 3000
18 Electrical perpessio circa ruptor Operatio 30(E2)
19 Damnum servitutis continuum
LSC2

Technical Operating Opera Morbi

·Ambientes temperatus: -10°C ~ +40°C
·Altitude: Altitudo ≤1000m; Low-voltage ≤2500m (consuetudo consilium praesto plus-range procurationem)
· Humiditas relativa: ≤85%
·Seismic intensio: ≤ Magnitude 8
· PRAEREQUISITIS ENVIRONMENTALIS: Nulla ignis / explosionis discrimina, nulla gravis pollutio, nulla chemica corrosio, nulla violenta vibratio (procuratio situs his occurrere debet)

Per indefessam omnium laborum nostrorum conatus, qualitatem nostram administrationem continenter emendamus ut switchgear anulum inclusum certum 35kV ad distributionem fideicommissum nostris clientibus remaneat. Propositum est emptoribus praebere rationes probatissimas et solutiones aptissimas, maxima satisfactio emptoris. Principiis emptoris primo, mercatus orientationis et efficientiae adhaeremus, et continenter ingenium nostrum excolimus.

Hot Tags: anulus metallicus inclusus principalis unitas, Sina, artifices, officina, pretium, 630A Aeris Load Breaker Switch, Indoor 24kv Gas LBS, SF6 Disconnector Switch, Outdoor Murrina Clad Vacuum Circuit Breaker, Single Phase Voltage Transformer 20kV, Aeris Insulae Vacuum Circuit Breakgear Switchgear

Hot Tags: 35kV Fixum Switchgear anulum inclusum pro Distributione, China, Manufacturer, Supplier, Factory, Lupum, Mos, In Stock, In Sinis, Minimum Price, Quality.
Mitte Inquisitionem
Contactus info
Mitte inquisitionem de Comewill de switchgear, praevaricatores ambitus vacuos, commutator currentis. Mores adepto quotes, low prices or expert support from our China officinas manipulus.
X
Crusulis utimur ut meliorem experientiam pasco tibi praebeamus, situm negotiationis et personalize contentus analyse. Hoc situ utendo, ad nostrum crustulorum usum consentis. Privacy Policy
Reject Accipe